Сдам коммерческую недвижимость в Москве

Коммерческая недвижимость в Москве
Цена 99 999 р.
Вид недвижимости Нежилые свободного назначения
Адрес Южная, 2
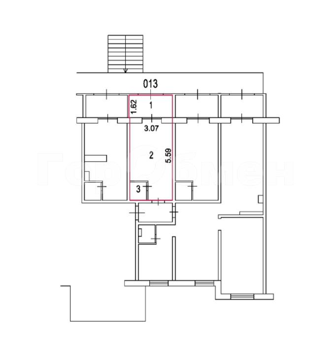
Площадь помещения 21,7 м2
Срочно. Без комиссии. Прямая аренда. Проходное место с плотным трафиком. Сдается отличное помещение с отдельным входом. Общая площадь - 21,7 м2, есть ещё помещение (20,8) м2, смежное. Возможна, совместная сдача . Шаговая доступность до ж/д станции: Реутов - 3 мин/пеш.; метро: Новокосино - 8 мин/пешком. Транспортная доступность: Новогиреево - 10 мин/тран., Перово - 15 мин/тран. Электричество - 15 кВТ. Есть возможность арендных каникул, вывески на фасаде. Свободное назначение (находится в жилом доме на 1 этаже). Потолки - 2,51 м. Лучшее предложение в районе. Фотографии соответствуют. Быстрый выход на сделку. Оперативный показ. Звоните, уважаемые коллеги и клиенты, буду рад с вами поработать.
Объявление № 23260993
Дата подачи:
2 октября 2025 г. 21:06
Дата обновления:
25 октября 2025 г. 2:26
Просмотров 5 Хотите продать быстрее?

Продавец
Агентство недвижимости:
АКСЕНОВ ЮРИЙ ЕВГЕНЬЕВИЧ
Показать номер телефона
Пожаловаться
Комментарии:
Добавить